EnEv 2014 als Chance zu mehr Wohn- und Lebensqualität

Häufig werden wir durch äußere Bedingungen zu (unliebsamen?) Maßnahmen zu veranlasst.

Mit verschärften Kontrollen werden die vorgeschriebenen Standards der Energieeinsparverordnung (EnEv)2014 überprüft. Hierzu gehören ein Energieausweis (nicht älter als 10 Jahre), weiterhin sind bestimmte energetische Nachrüstmaßnahmen zur Energieeinsparung zu erfüllen.

Um Energiespar-Maßnahmen zu fördern und dem Eigentümer die Umsetzung zu erleichtern stellt der Staat verschiedene Fördemittel zur Verfügung

Ich helfe Ihnen sich im Dschungel der Fördermittel zurechtzufinden und die Möglichkeiten verschiedere Fördermaßnahmen zu kombinieren.

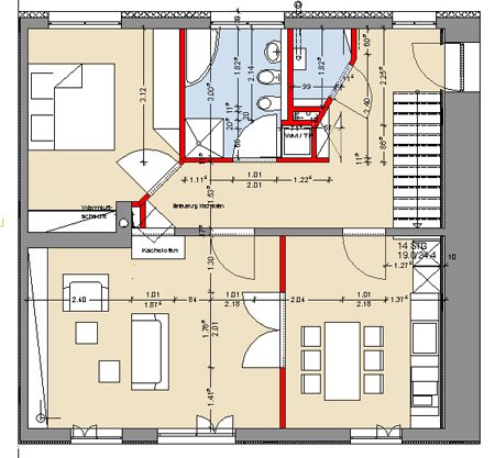
vorher Bestand
Sanierungsimmobilie

neue Raumkonzeption:
barrierereduziert und energetisch saniert


Warum nicht im Zuge der energetischen Sanierung

Die Kosten der Handwerkerleistungen können so komprimiert werden, indem z.B. durch Sanierungsmassnahmen notwendige Putz-oder Fliesenarbeiten mit einem neuen Baddesign und einer bodengleichen Dusche kombiniert werden können. Mit elektrisch gesteuerten Rolläden werden Wärmebrücken duch Fenstergurte minimiert und die Bedienung erleichtert. Beide Massnahmen können durch staatliche Programme gefördert werden

Die Handwerkerleistungen werden so optimiert, Kosten reduziert und die Belästigungen und Störungen durch die Umbaumassnahmen werden komprimiert.

Nutzen Sie die Chance zum zeitgemäßen Wohnen.

Gerne helfe ich Sie beim Ausarbeiten eines zeitgemäßen Wohn- und Energiekonzeptes und berate Sie bzgl. der möglichen Fördermittel.